客室の特徴

01

ホテルオリジナルベッド「Relaxy Angel」。世界的に評価の高いシモンズ社製のベッドマットレスをはじめ、体を空気のように包み込むデュヴェ(羽毛)など、至福の眠りへと誘う工夫が随所に散りばめられています。
※画像はスーペリアツインのお部屋です。

落ち着いた照明のモダンなツインルーム、黒のベッドカバー

02

全身で浴びることができるオーバーヘッドシャワーは、まるで湯船につかっているかのような心地よさです。空気を多く含んだ水流は柔らかく、ワンランク上の心地よいバスタイムをお楽しみください。さらにバスとトイレが別になったセパレートタイプで、快適にご利用いただけます。

清潔感のあるバスルーム、壁掛けシャワーとアメニティ付き

03

しっかりとした厚手の生地で、柔らかく吸水性の高い国産タオルを使用しています。大判サイズのバスタオルはふかふかのボリュームで、全身を優しく包みます。

ふんわりとした白いバスタオルのアップ

04

内側に軽く優れた吸水性の高いタオル地を使用しているので、濡れたままの体でそのまま羽織っても、お風呂上りの汗をしっかりと吸水。たっぷりとしたボリュームのバスローブに全身を包み、入浴後の贅沢なリラックスタイムをお過ごしださい。

胸元にグランヴィアのロゴが付いている白色のバスローブ

05

SDGsの取り組みの一環として、紙パック製のナチュラルウォーターを導入。プラスチック製品の削減により、人と地球にやさしいホテルの実現を目指します。

ナチュラルウォーター「NAVARY’S」の紙パック容器

06

アロマと深い味わいをお楽しみいただけるカプセルコーヒーをお部屋にご準備しています。

コーヒーカップ&カップソーサーのセットに添えられたコーヒーカプセルと、コーヒーマシン

07

プロが認める高品質のヘアサロン専売ブランド「ハホニコ」と共同開発したオリジナルアメニティ5種(シャンプー・トリートメント・ボディソープ・クレンジング・フェイスウォッシュ)。女性に嬉しいダメージケア成分を配合し、サロン級の仕上がり。京都らしいグリーンティーの香りでバスタイムもリラックスしていただけます。ディスペンサー方式で環境に配慮しています。(スイートルーム以外のお部屋)

色とりどりのボトルタイプのスキンケア・ヘアケアアメニティ

08

パリの老舗ブランド「デタイユ」とのコラボレーションで誕生した伝統の品質と貴婦人の香りが楽しめるトータルケアシリーズ。スキンケア発想のうるおい品質で艶やかに輝く肌と髪に。

淡い色合いのパッケージのバスアメニティ5本セット

客室一覧

ツインベッドと間接照明が配置された落ち着いた洋室
ツインベッドと障子風の間仕切りがある室内
ソファとローテーブル、テレビがあるリビングスペース
大理石調の洗面台とバスタブ付きのバスルーム

京都をテーマにした美しいモノトーンの写真やアート作品の装飾や、洗練されたインテリアで、ゆとりのホテルステイをご堪能いただけます。

セミスイートツインの客室情報
広さ 50㎡
ベッドサイズ W:1400mm × L:2100mm
定員 2名

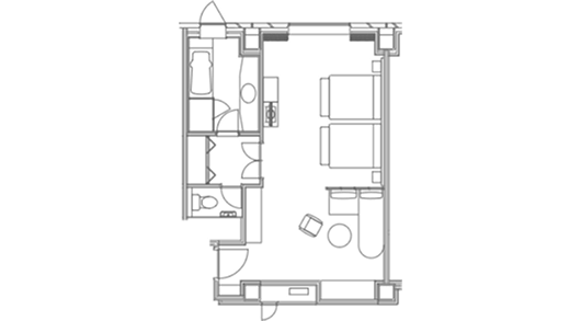
セミスイートツインの間取り図

アメニティ・客室設備

アメニティ

  • シャンプー
  • コンディショナー
  • ボディーソープ
  • フェイス&ハンドソープ
  • 歯ブラシ
  • 歯磨き粉
  • レザー
  • シャワーキャップ
  • バスジェル
  • ヘアブラシ
  • 綿棒
  • コットン

設備

  • ドライヤー
  • Wi-Fi・有線LAN
  • 冷蔵庫
  • ボイスメッセージ機能付き電話
  • セーフティーボックス
  • 暖房便座付ウォシュレット
  • スリッパ
  • ナイトウェア
  • シモンズ社製ベッド
  • 消臭スプレ ー

ダブルベッドとソファ、テレビがある温かみのある室内
ダブルベッドとテーブルが配されたシンプルな洋室
大理石調の洗面台とバスタブ付きのバスルーム

ゆとりのあるベッドと窓付きのバスルームで、贅沢なひと時をお過ごしください。

セミスイートダブルの客室情報
広さ 50㎡
ベッドサイズ W:1800mm × L:2100mm
定員 2名

セミスイートダブルの間取り図

アメニティ・客室設備

アメニティ

  • シャンプー
  • コンディショナー
  • ボディーソープ
  • フェイス&ハンドソープ
  • 歯ブラシ
  • 歯磨き粉
  • レザー
  • シャワーキャップ
  • バスジェル
  • ヘアブラシ
  • 綿棒
  • コットン

設備

  • ドライヤー
  • Wi-Fi・有線LAN
  • 冷蔵庫
  • ボイスメッセージ機能付き電話
  • セーフティーボックス
  • 暖房便座付ウォシュレット
  • スリッパ
  • ナイトウェア
  • シモンズ社製ベッド
  • 消臭スプレ ー

広々としたベッドルームとテーブル、障子風の間仕切りがある洋室
大きな窓とソファセットが印象的なラグジュアリーな空間

こだわり抜いたインテリアを備えた、特別な1室だけのコンセプトスイートルームです。

ドリームスイートの客室情報
広さ 50㎡
ベッドサイズ W:1400mm × L:2100mm
定員 2名

ドリームスイートの間取り図

アメニティ・客室設備

アメニティ

  • シャンプー
  • コンディショナー
  • ボディーソープ
  • フェイス&ハンドソープ
  • 歯ブラシ
  • 歯磨き粉
  • レザー
  • シャワーキャップ
  • バスジェル
  • ヘアブラシ
  • 綿棒
  • コットン

設備

  • ドライヤー
  • Wi-Fi・有線LAN
  • 冷蔵庫
  • ボイスメッセージ機能付き電話
  • セーフティーボックス
  • 暖房便座付ウォシュレット
  • スリッパ
  • ナイトウェア
  • シモンズ社製ベッド
  • 消臭スプレ ー

この部屋を予約する

TEL.075-344-8888 (大代表)

ダイニングスペースとソファセットがあるモダンな和洋室
モダンなインテリアのダイニングスペースとソファ
間接照明とベッドがあるスタイリッシュな寝室
洗練された洗面スペースとシャワーブースのあるバスルーム

ホテル最上階のセミスイートプレミアム。窓から望む京都の街並みとともに、ワンランク上の特別な空間をご提案します。

グランヴィアセミスイートツインプレミアムの客室情報
広さ 66㎡
ベッドサイズ W:1600mm × L:2100mm
定員 2名

グランヴィアセミスイートツインプレミアムの間取り図

アメニティ・客室設備

アメニティ

  • シャンプー
  • コンディショナー
  • ボディーソープ
  • フェイス&ハンドソープ
  • 歯ブラシ
  • 歯磨き粉
  • レザー
  • シャワーキャップ
  • バスジェル
  • ヘアブラシ
  • 綿棒
  • コットン

設備

  • ドライヤー
  • Wi-Fi・有線LAN
  • 冷蔵庫
  • ボイスメッセージ機能付き電話
  • セーフティーボックス
  • 暖房便座付ウォシュレット
  • スリッパ
  • ナイトウェア
  • シモンズ社製ベッド
  • 消臭スプレ ー

この部屋を予約する

TEL.075-344-8888 (大代表)

ツインベッドとソファ、テーブルがある上質な洋室
窓際にソファセットがあり、夜景を望めるリビングスペース

陽光溢れる風景と幻想的に浮かび上がる夜景に、ニデック京都タワーが彩りを添えます。

エグゼクティブスイートの客室情報
広さ 70㎡
ベッドサイズ W:1600mm × L:2100mm
定員 2名

エグゼクティブスイートの間取り図

アメニティ・客室設備

アメニティ

  • シャンプー
  • コンディショナー
  • ボディーソープ
  • フェイス&ハンドソープ
  • 歯ブラシ
  • 歯磨き粉
  • レザー
  • シャワーキャップ
  • バスジェル
  • ヘアブラシ
  • 綿棒
  • コットン

設備

  • ドライヤー
  • Wi-Fi・有線LAN
  • 冷蔵庫
  • ボイスメッセージ機能付き電話
  • セーフティーボックス
  • 暖房便座付ウォシュレット
  • スリッパ
  • ナイトウェア
  • シモンズ社製ベッド
  • 消臭スプレ ー

広い窓からの夜景が美しい、ソファとテーブルのある室内
ビューバスとベッドルームが一体になった開放的な空間

ホテル最上階のスイートルームは、和と洋の見事なフュージョンを満喫いただけます。開放感溢れる大窓からは京都の山なみ、街(=洛)を一望(=眺)できる、稀有な絶景をご堪能ください。

眺洛スイートの客室情報
広さ 73㎡
ベッドサイズ W:1800mm × L:2100mm
定員 2名

眺洛スイートの間取り図

アメニティ・客室設備

アメニティ

  • シャンプー
  • コンディショナー
  • ボディーソープ
  • フェイス&ハンドソープ
  • 歯ブラシ
  • 歯磨き粉
  • レザー
  • シャワーキャップ
  • バスジェル
  • ヘアブラシ
  • 綿棒
  • コットン

設備

  • ドライヤー
  • Wi-Fi・有線LAN
  • 冷蔵庫
  • ボイスメッセージ機能付き電話
  • セーフティーボックス
  • 暖房便座付ウォシュレット
  • スリッパ
  • ナイトウェア
  • シモンズ社製ベッド
  • 消臭スプレ ー

この部屋を予約する

TEL.075-344-8888 (大代表)